屋苑詳情
- 承建商 未知
- 發展商 未知
- 建設年份 2009-01-23
- 入夥日期 2009-01-23
- 座期數 1
- 單位數 未知
- 車位數 未知
- 層數 21
- 電梯 有
- 間隔 未知
- 備注 未知
平面圖
地下平面圖
地面商場平面圖
1樓平面圖
1樓商場平面圖
2樓平面圖
2樓商場平面圖
3樓平面圖
3樓商場平面圖
4樓平面圖
4樓商場平面圖
5樓平面圖
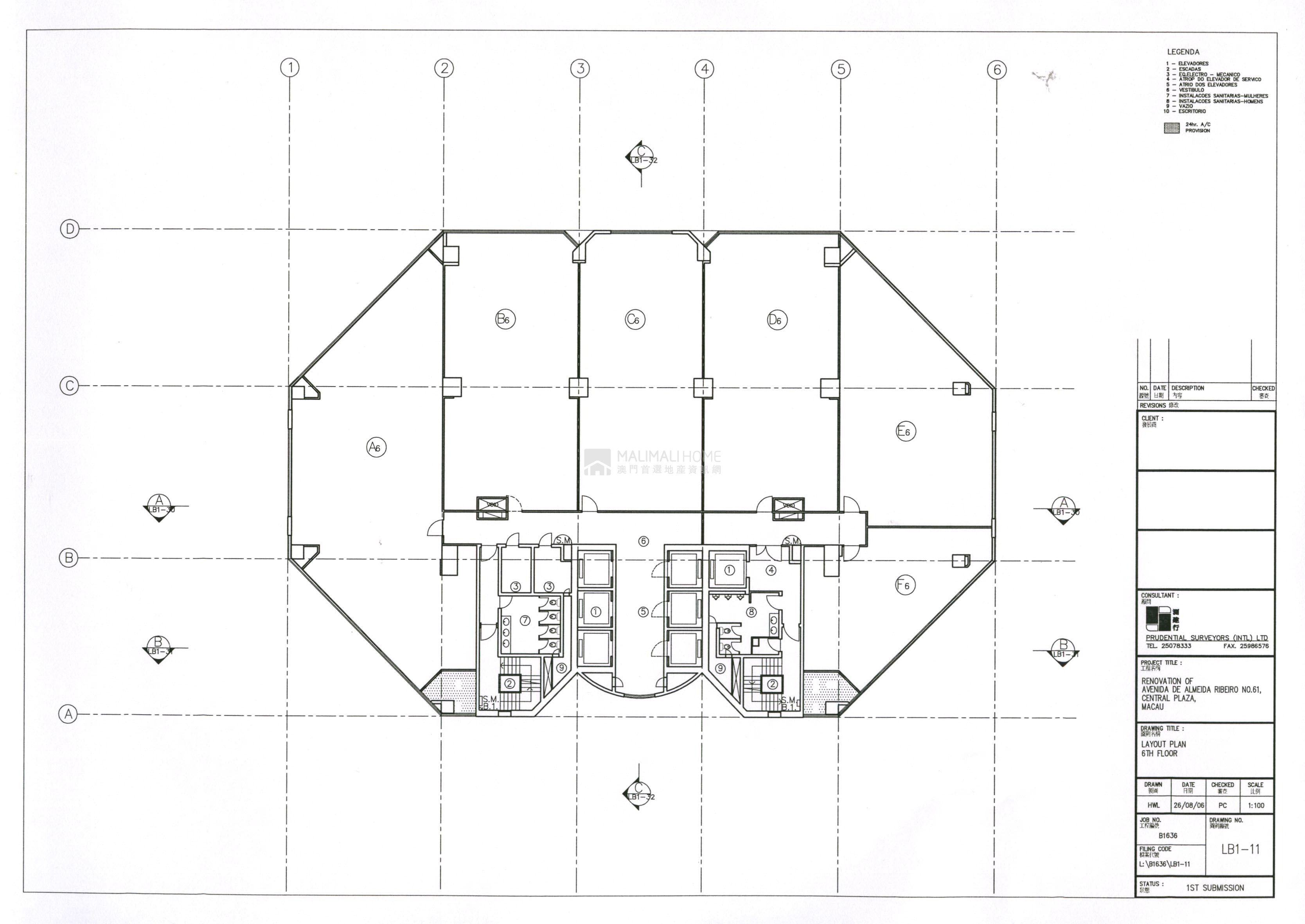
6樓平面圖
7樓平面圖
8樓平面圖
9樓平面圖
10樓平面圖
11樓平面圖
12樓平面圖
13樓平面圖
14樓平面圖
15樓平面圖
16樓平面圖
17樓平面圖
18樓平面圖
19樓平面圖
20樓平面圖
21樓平面圖
位置圖



